switek email

sales06@switek.biz

switek whatsapp

+86 186 5927 5869

.
Injection Robotic Arm

การซื้อแขนหุ่นยนต์แบบครบวงจรสำหรับเครื่องฉีดพลาสติก

คำแนะนำการติดตั้งแขนหุ่นยนต์ SWITEK สำหรับเครื่องฉีดพลาสติก -- บทที่ 2: ความปลอดภัยในการติดตั้ง
เชิงนามธรรม

แขนหุ่นยนต์จะถูกติดตั้งไว้ที่ด้านบนของเครื่องฉีดพลาสติก ซึ่งจะต้องทำงานในสถานการณ์การทำงานที่รวดเร็วหรือเมื่อมีภาระหนัก การไม่ปฏิบัติตาม ข้อมูลใดๆ เกี่ยวกับความปลอดภัยของการติดตั้งแขนหุ่นยนต์อาจส่งผลให้เกิดภัยพิบัติ ซึ่งอาจส่งผลให้พนักงานของคุณได้รับบาดเจ็บสาหัสหรือเสียชีวิตได้ ในบทนี้ เราจะพูดถึงสัญญาณเตือนและความหมายของแขนหุ่นยนต์เพื่อความปลอดภัยในการใช้งานแขนหุ่นยนต์

2.1 คำแนะนำด้านความปลอดภัย

ป้ายเตือนระดับอันตราย: ข้อควรระวังด้านความปลอดภัยที่บันทึกไว้ในคู่มือนี้แบ่งออกเป็นสามประเภทดังต่อไปนี้ เมื่อระดับอันตรายสูง โปรดระมัดระวังเป็นพิเศษ

robot alarm
การไม่ปฏิบัติตามข้อควรระวังนี้อาจนำไปสู่การเสียชีวิตหรือบาดเจ็บสาหัสได้
robot alarm
การไม่ปฏิบัติตามข้อควรระวังนี้อาจส่งผลให้เสียชีวิตหรือบาดเจ็บสาหัส หรือทำให้เครื่องจักรได้รับความเสียหายร้ายแรงได้
robot alarm
การไม่ปฏิบัติตามข้อควรระวังนี้อาจส่งผลให้เกิดการบาดเจ็บส่วนบุคคลหรือความเสียหายร้ายแรงต่อเครื่องจักร

2.2 กฎความปลอดภัย
2.2.1 กฎความปลอดภัยทั่วไป
  1. ทำความรู้จักกับเครื่องจักรของคุณเพื่อความปลอดภัยส่วนบุคคล โปรดอ่านคู่มือนี้อย่างละเอียด

    คุ้นเคยกับการใช้งานเครื่องจักรและข้อจำกัด ตลอดจนอันตรายที่อาจเกิดขึ้นที่เกี่ยวข้องกับเครื่องจักร

  2. รักษาพื้นที่ทำงานให้สะอาด:

    พื้นที่รกและโต๊ะทำงานอาจทำให้เกิดความประหลาดใจได้.

  3. ห้ามใช้แขนหุ่นยนต์ในสภาพแวดล้อมอันตราย:

    ห้ามใช้หุ่นยนต์ในสถานที่เปียกหรือฝนตก

  4. ให้เด็กอยู่ห่างจากพื้นที่ทำงานแขนหุ่นยนต์:

    ผู้เยี่ยมชมทุกคนต้องรักษาระยะห่างที่ปลอดภัยภายในพื้นที่ทำงาน โรงงานต่างๆ ต้องดูแลให้เด็กอยู่ห่างจากมือหุ่นยนต์

  5. ห้ามใช้งานเครื่องโดยเด็ดขาด

    ให้หุ่นยนต์ทำงานอย่างปลอดภัยด้วยความเร็วที่ออกแบบไว้และภายในระยะเคลื่อนที่

  6. ดีบัก mainpulator ด้วยเครื่องมือที่ถูกต้อง
  7. สวมใส่เสื้อผ้าที่เหมาะสม

    หลีกเลี่ยงการสวมหรือสวมเครื่องประดับที่หลวม เช่น ถุงมือ สร้อยคอ กำไลข้อมือ หรือเครื่องประดับที่อาจติดอยู่ในชิ้นส่วนที่เคลื่อนไหวได้ แนะนำให้สวมรองเท้ากันลื่น สวมหมวกคลุมผมยาว

  8. การซ่อมบำรุงเครื่องจักรในสภาพสุดท้าย:

    ปฏิบัติตามคำแนะนำในการหล่อลื่นและการบำรุงรักษา และทำความสะอาดเครื่องจักรเป็นประจำเพื่อยืดอายุการใช้งานของหุ่นยนต์

  9. ก่อนการบำรุงรักษา การเปลี่ยนชิ้นส่วน หรือการประกอบและประกอบมอเตอร์ใหม่ จะต้องตัดไฟหลักและอากาศของหุ่นยนต์เสียก่อน
  10. ใช้อุปกรณ์เสริมที่แนะนำ ตรวจสอบอุปกรณ์เสริมที่แนะนำในคู่มือ
2.2.2 กฎความปลอดภัยเพิ่มเติมสำหรับแขนหุ่นยนต์
robot warning บ่งชี้ว่าการไม่ปฏิบัติตามคำแนะนำอาจส่งผลให้เกิดการบาดเจ็บร้ายแรงหรือเสียชีวิต
  1. ความปลอดภัยทางไฟฟ้า
    • เป็นตำแหน่งที่มีไฟฟ้าแรงสูง ห้ามสัมผัสขณะเปิดเครื่อง
    • การไม่ปฏิบัติตามคำแนะนำนี้อาจส่งผลให้เกิดไฟดูด ไฟฟ้าช็อต ไฟไหม้ หรือเสียชีวิตได้
    • ห้ามเดินเครื่องโดยเปิดกล่องควบคุมไฟฟ้าไว้
    • ระหว่างการบำรุงรักษา งานสามารถดำเนินการได้หลังจากตัดแหล่งจ่ายไฟหลักแล้วเท่านั้น
  2. เงื่อนไขการใช้งานที่ห้าม
    • สภาพแวดล้อมที่มีก๊าซและของเหลวไวไฟ
    • สภาพแวดล้อมที่วัตถุนำไฟฟ้า เช่น เศษโลหะหลังจากการประมวลผลโลหะกระจัดกระจาย
    • มีสภาพแวดล้อมที่มีก๊าซกัดกร่อน เช่น กรดและด่าง
    • มีสภาพแวดล้อมที่เป็นหมอกซึ่งเกิดจากน้ำหล่อเย็นที่ใช้ในการตัดและเจียร
    • มีอินเวอร์เตอร์ขนาดใหญ่ เครื่องส่งสัญญาณความถี่สูงเอาต์พุตกำลังสูง ตัวนำขนาดใหญ่ เครื่องเชื่อม และแหล่งกำเนิดสัญญาณรบกวนไฟฟ้าอื่นๆ อยู่บริเวณใกล้เคียง
    • มีสภาพแวดล้อมอุณหภูมิภายนอกช่วง 0~40°C ในระหว่างการทำงาน
    • มีสภาพแวดล้อมที่มีความชื้นเกิน 90%RH
    • มีสภาพแวดล้อมที่เกิดการควบแน่นของความชื้น
  3. เรื่องที่ห้ามทำ
    • พฤติกรรมที่เตือนไว้ในป้ายเตือน
    • การกระทำที่ห้ามกระทำในคู่มือการใช้งาน
    • ฉีกป้ายเตือน
    • ดำเนินกิจการในสภาพที่ไร้การตัดสินตามปกติเนื่องจากการดื่มสุรา การกินยา และการเจ็บป่วย
    • การทำงานภายใต้ไฟฟ้าดับเป็นระยะๆ อันเนื่องมาจากฟ้าร้อง ฟ้าผ่า และสาเหตุอื่นๆ
    • การดัดแปลงเครื่องจักรและอุปกรณ์โดยไม่ได้รับอนุญาตจากบริษัท
  4. ข้อกำหนดการใช้งาน

    องค์กรที่ใช้เครื่องจักรระบบอัตโนมัติทางอุตสาหกรรมควรปฏิบัติตาม "แนวทางทางเทคนิคสำหรับมาตรฐานความปลอดภัยสำหรับการใช้เครื่องจักรระบบอัตโนมัติทางอุตสาหกรรม" ที่กำหนดขึ้น เพื่อกำหนดข้อควรระวังในการเลือก การติดตั้ง การใช้งาน ฯลฯ และเพื่อป้องกันอุบัติเหตุทางอุตสาหกรรม มาตรการที่จำเป็นสำหรับภัยพิบัติทางอุตสาหกรรม

  5. การต่อลงดินของระบบ
    • เพื่อให้ระบบปฏิบัติการทำงานได้อย่างเสถียรและเป็นปกติ การต่อลงดินของระบบ (การต่อลงดินครั้งที่ 3) จะต้องมีความน่าเชื่อถือ เพื่อป้องกันการทำงานผิดปกติต่างๆ ที่เกิดจากแรงดันไฟฟ้ารั่วไหลหรือไฟฟ้าสถิตของระบบได้อย่างมีประสิทธิภาพ
    • โปรดตรวจสอบให้แน่ใจว่าได้ต่อสายดินไดรเวอร์เซอร์โวและมอเตอร์เซอร์โวแล้ว
    • เพื่อป้องกันไฟฟ้าช็อต โปรดแน่ใจว่าได้เชื่อมต่อขั้วกราวด์ป้องกันของไดรฟ์เซอร์โวและแผงควบคุม
  6. ข้อควรระวัง
    • การบำรุงรักษา การซ่อมบำรุง และการยกเครื่องแมนิพิวเลเตอร์จะต้องดำเนินการโดยบุคลากรที่ได้รับการฝึกอบรมอย่างมืออาชีพ
    • จะต้องมีอุปกรณ์ป้องกันความปลอดภัยในพื้นที่การทำงานของหุ่นยนต์เพื่อหลีกเลี่ยงอันตรายต่อร่างกายมนุษย์
    • การเดินสายไฟฟ้าทั้งหมดของแมนิพิวเลเตอร์จะต้องดำเนินการโดยผู้เชี่ยวชาญ และเดินสายตามข้อกำหนดและคำแนะนำที่ระบุ
    • มีการติดตั้งป้ายเตือนที่จำเป็นไว้กับแมนิพิวเลเตอร์เพื่อขจัดอันตรายตกค้าง โปรดใส่ใจป้ายเตือนระหว่างการใช้งาน
    • การจัดการเครื่องจักรจะต้องเป็นไปตามบทบัญญัติของกฎความปลอดภัย
    • การดำเนินการ การปรับแต่ง และการควบคุมทั้งหมดต้องปฏิบัติตามคำแนะนำในคู่มือ
    • เมื่อมีคนอยู่ในพื้นที่อันตราย เครื่องมือนี้จะไม่สามารถควบคุมได้
    • ผู้ควบคุมด้วยมือจะต้องติดตั้งไว้ภายนอกพื้นที่อันตราย และผู้ปฏิบัติงานจะต้องยืนอยู่ภายนอกพื้นที่อันตราย
    • เมื่อแมนิพิวเลเตอร์กำลังซ่อมแซมหรือเปลี่ยนเครื่องปรับเทียบแม่พิมพ์ จะต้องปิดแหล่งจ่ายไฟและถอดปลั๊กแหล่งอากาศออก
    • แมนิพิวเลเตอร์มีฟังก์ชันตรวจจับข้อผิดพลาดอัตโนมัติ และผู้ใช้ควรติดต่อตัวแทนหรือบริษัทตามคำอธิบายข้อผิดพลาด อย่าทำการเปลี่ยนแปลงใดๆ เว้นแต่จะได้รับการฝึกอบรมอย่างมืออาชีพ
    • นอกจากสวิตช์ตรวจจับความใกล้เคียง การตรวจจับแรงดูด คลิปที่เสียหาย และความผิดปกติของโซลินอยด์วาล์วที่สามารถซ่อมแซมได้ด้วยตนเองแล้ว โปรดแจ้งตัวแทนหรือบริษัทของเรา
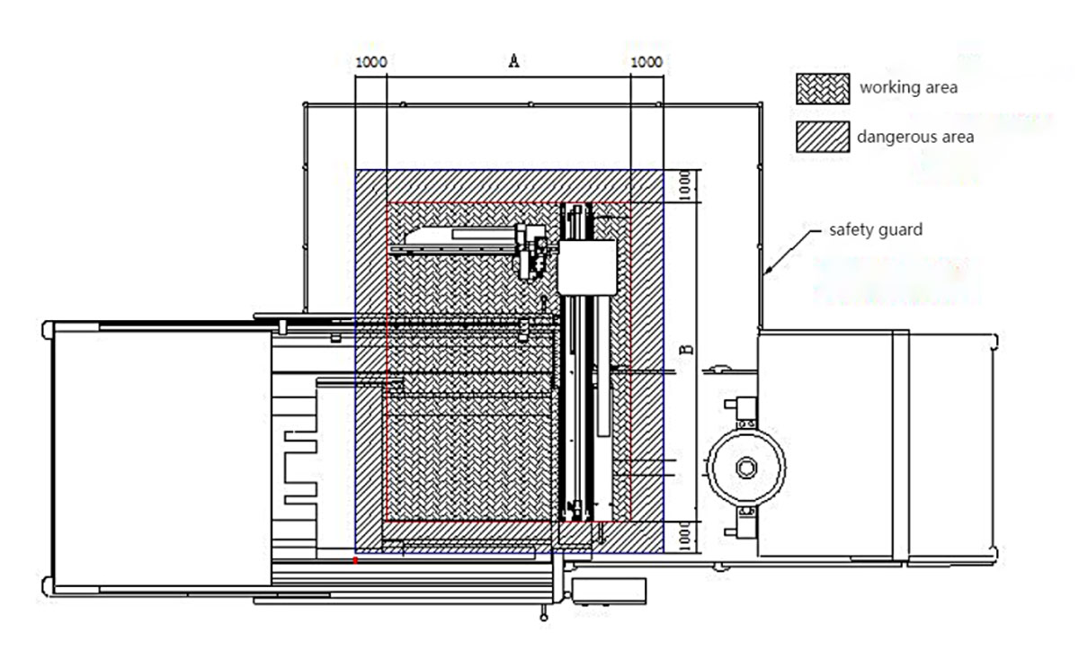
2.3 การ์ดความปลอดภัย
robotic arm safety guard
robot warning
ระยะห่างขั้นต่ำ (ปลอดภัย) จากตัวป้องกันความปลอดภัยหรืออันตรายใดๆ ต่อตัวป้องกันจะต้องเป็นไปตามข้อกำหนด 5.10 ใน GB 11291.2-2013
2.4 ป้ายเตือน
robot warning signs
2.5 ป้ายชื่อเครื่องจักร
robot name plate

Δ โปรดตรวจสอบความไม่สอดคล้องกันระหว่างป้ายชื่อและตัวหุ่นยนต์อย่างละเอียด เพื่อให้สามารถค้นหาไฟล์เครื่องจักรที่เกี่ยวข้อง ตามข้อมูลป้ายชื่อระหว่างการบำรุงรักษา!


โซลูชันการฉีดอัตโนมัติแบบครบวงจร

E-mail:sales06@switek.biz



ไอเอ็มแอล เทคโนโลยี เอ็กซ์เพรส

  1. การประกอบหุ่นยนต์ IML รุ่นใหม่ของ SWITEK สำหรับการห่อ + ติดฉลากด้านล่างเสร็จเรียบร้อยแล้ว

  2. SWITEK ใหม่ 12 ฟันผุ Take Away ถ้วยฝาปิดระบบการกดเริ่มต้นสำหรับการผลิต

  3. YIZUMI Machinery มุ่งเน้นที่เศรษฐกิจหมุนเวียน โดยส่งเสริมเครื่องฉีดพลาสติกแบบไฟฟ้าทั้งหมดเพื่อลดการใช้พลังงานต่อกิโลกรัมให้เหลือน้อยที่สุด

  4. K-Fair 2022 ไฮไลท์ที่ฮอลล์ 15

  5. วิศวกร SWITEK เสร็จสิ้นการติดตั้งแมกกาซีนใหม่ในประเทศชิลี

  6. Fakuma 2023 -- Arburg จัดแสดงโซลูชันระบบอัตโนมัติของ IML และชุดกล่องเครื่องมือ

  7. หุ่นยนต์ IML ใหม่สำหรับหลอดเครื่องสำอางของ SWITEK กำลังได้รับการทดสอบภายในองค์กร

  8. K-2022 โซลูชั่น IML แบบครบวงจรของ Yizumi On Show พร้อมเครื่องฉีดพลาสติกไฟฟ้าความเร็วสูง PAC250E

  9. SWITEK ใหม่ กล่องสี่เหลี่ยม 2 ช่อง 5 หน้าติดฉลาก IML ระบบ IML ทางเข้าด้านบนที่ติดตั้งสำหรับการผลิต

  10. Fakuma 2023 -- ดูว่า Spetztekhosnastka Ltd. ผู้จัดแสดง Fakuma จากยูเครนจะคาดหวังอะไร

สอบถามตอนนี้
ส่ง